Skip to main content
Ron Durrett
FOR SALE
$799,000

5270 San Bernardo Ter
San Diego, CA 92114

Single Family
Residential
3
Beds
2
Baths
1,718
Sq. Ft.
8,036
Acre Lot
Courtesy: Cindy Sun - San Diego Gold Medal Realty Inc
Home> California> San Diego> 92114
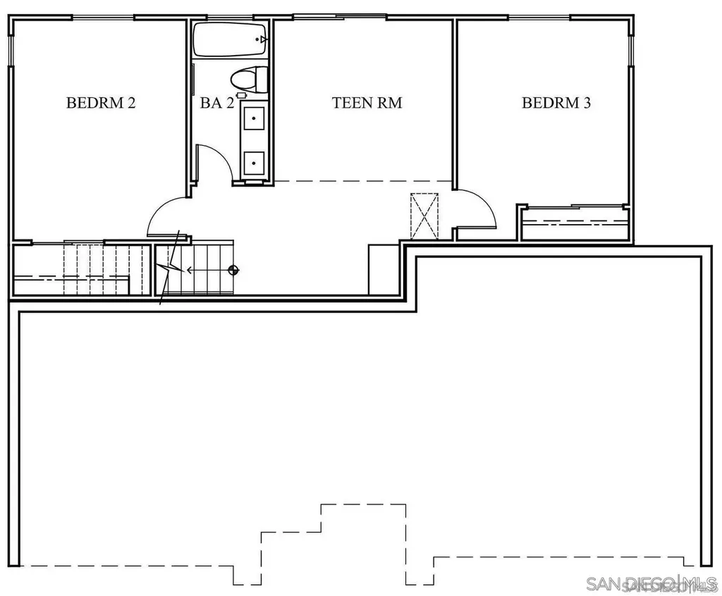
Amazing VIEW home that lives like a single level with big yard. This thoughtfully designed reverse floor plan features the living room, dining room, kitchen, and primary bedroom on the first floor. The second level offers two bedrooms plus a large den that can be used as a work-from-home space or playroom or potential as the 4th bedroom. Move-in ready with zero HOA fees or mello roos! Seated on a large usable lot directly across from the adorable new La Paz Mini Park with three fun play structures, bbq, and picnic tables. Eco-friendly electric home includes AC, an EV ready two car garage, LED lighting throughout, and solar. VA buyers welcome!
250039708
Single Family, 2 Story
3
San Diego
2 Full/1 Half
2023
8,036 Sq. Ft.
Public Water
2
Stucco
Public Sewer
True https://photos.prod.cirrussystem.net/10112/657d15be3bdd64061b3c4aca99566453/4143218241.jpeg?format=webp 250039708
Loading...
Data Source: Constellation Data Labs®
The scores below measure the walkability of the address, access to public transit of the area and the convenience of using a bike on a scale of 1-100

Walk Score

Transit Score

Bike Score

Loading...
Data Provided by ATTOM Data®
Courtesy: Cindy Sun - San Diego Gold Medal Realty Inc
San Diego MLS logo
This information is deemed reliable but not guaranteed. You should rely on this information only to decide whether or not to further investigate a particular property. BEFORE MAKING ANY OTHER DECISION, YOU SHOULD PERSONALLY INVESTIGATE THE FACTS (e.g. square footage and lot size) with the assistance of an appropriate professional. You may use this information only to identify properties you may be interested in investigating further. All uses except for personal, non-commercial use in accordance with the foregoing purpose are prohibited. Redistribution or copying of this information, any photographs or video tours is strictly prohibited. This information is derived from the Internet Data Exchange (IDX) service provided by San Diego MLS. Displayed property listings may be held by a brokerage firm other than the broker and/or agent responsible for this display. The information and any photographs and video tours and the compilation from which they are derived is protected by copyright. Compilation © 2022 San Diego MLS. 
This content last refreshed on 11/8/2025 3:14 PM CST. Some properties which appear for sale on this web site may subsequently have sold or may no longer be available.
Information is deemed reliable but is not guaranteed.