Skip to main content
Ron Durrett
SOLD
$1,150,000
Date 12/03/2025

6831 El Banquero Pl
San Diego, CA 92119

Single Family
Residential
3
Beds
2
Baths
1,474
Sq. Ft.
0.27
Acre Lot
Courtesy: Eric R Hays - Compass
Home> California> San Diego> 92119
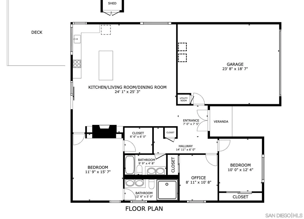
Sellers bought this home as a flip in 2022 & have since spent over $100K in upgrades & improvements! (see attached list). Features include fully renovated kitchen & baths, new flooring, whole house water filtration system w/14 stage reverse osmosis drinking water, finished garage w/epoxy floor & direct access to the home, primary bedroom with ensuite bathroom & walk-in closet, central a/c + Mitsubishi mini-split in the primary bedroom, new Murphy bed in the guest bedroom, open kitchen with quartz counters, stainless steel appliances, new cabinets & a kitchen island/breakfast bar. There is also an additional bonus room in the back yard that is roughly 100 sf & is equipped with electricity & a Mitsubishi mini-split for temperature control - perfect for an office, workout room or art studio! Sitting on an 11,600 sf corner lot this property also features a new paver driveway & pathway, a private deck, beautiful landscaping & views of Cowles Mountain. This is a nature lover's dream with Mission Trails Regional Park & Cowles Mountain just minutes away!
250042183
Single Family, 1 Story
3
San Diego
2 Full
1990
0.27 Acres
1
Stucco
True https://photos.prod.cirrussystem.net/10112/5b999c0f0aabc1bd740bb219566eb957/1293796313.jpeg?format=webp 250042183
Loading...
Data Source: Constellation Data Labs®
The scores below measure the walkability of the address, access to public transit of the area and the convenience of using a bike on a scale of 1-100

Walk Score

Transit Score

Bike Score

Loading...
Data Provided by ATTOM Data®
Courtesy: Eric R Hays - Compass
San Diego MLS logo
This information is deemed reliable but not guaranteed. You should rely on this information only to decide whether or not to further investigate a particular property. BEFORE MAKING ANY OTHER DECISION, YOU SHOULD PERSONALLY INVESTIGATE THE FACTS (e.g. square footage and lot size) with the assistance of an appropriate professional. You may use this information only to identify properties you may be interested in investigating further. All uses except for personal, non-commercial use in accordance with the foregoing purpose are prohibited. Redistribution or copying of this information, any photographs or video tours is strictly prohibited. This information is derived from the Internet Data Exchange (IDX) service provided by San Diego MLS. Displayed property listings may be held by a brokerage firm other than the broker and/or agent responsible for this display. The information and any photographs and video tours and the compilation from which they are derived is protected by copyright. Compilation © 2022 San Diego MLS. 
This content last refreshed on 12/17/2025 12:55 AM CST. Some properties which appear for sale on this web site may subsequently have sold or may no longer be available.
Information is deemed reliable but is not guaranteed.